Что лучше для памятника: гранит или мрамор. Гранитный или мраморный: какой выбрать? «Мастер Каменев»

Хабаровск
ул. Волочаевская, 15

Ваш город
Хабаровск?

Выберите город

Как добраться?

Пн–Пт 11–17, обед 13–14

+7 (995) 262 00 66 Показать

Что лучше для памятника: Гранит или Мрамор? Всестороннее сравнение материалов для увековечивания памяти

Gemini_Generated_Image_lnot6klnot6klnot

 

Что лучше для памятника: Гранит или Мрамор? (аудиоверсия статьи)

Введение: Экзистенциальный выбор между Вечностью и Эстетикой

 

page2_img1


В тот момент, когда человек сталкивается с необходимостью выбрать памятник, он оказывается на пересечении глубочайших эмоциональных переживаний и сурового материального прагматизма.

 

Gemini_Generated_Image_to6swqto6swqto6s

Это решение принимается не для себя, а для Другого - для сохранения памяти о близком человеке перед лицом неумолимого времени. В этом контексте вопрос "что лучше: гранит или мрамор?" трансформируется в поиск баланса между желанием выразить любовь через утонченную красоту и стремлением защитить эту память от разрушительного воздействия веков.


Как эксперт в области ритуальной архитектуры, я понимаю, что за выбором стоит серьезный аналитический этап. Для принятия верного решения часто требуется профессиональная консультация по подбору материалов и дизайна памятника.

 

Gemini_Generated_Image_to6swqto6swqto6s (1)

Данный материал представляет собой исследование, которое поможет вам понять, во что превратится выбранный символ памяти через десятилетия.


Сравнение характеристик: Гранит или Мрамор

Для объективной оценки свойств камня ниже приведено подробное сравнение характеристик основных пород. Чтобы лучше понять структуру мемориала, рекомендуем изучить полный гид по всем элементам мемориального комплекса.

Характеристика Гранит (Габбро-диабаз) Мрамор (Коелга/Уфалей) Влияние на памятник
Геологический тип Магматическая порода Метаморфическая порода Определяет внутреннюю плотность.
Минеральная основа Кварц, шпаты, слюда Кальцит, доломит Гранит тверже; мрамор пластичнее.
Прочность на сжатие Высокая Средняя Влияет на устойчивость стелы.
Водопоглощение Низкое (0.01-0.15%) Среднее (0.1% - 0.8%) Определяет морозостойкость.
Срок службы Более 150 лет 50 - 100 лет Долговечность мемориала.
Уход Минимальный Регулярный Защита от внешних воздействий.
Портрет и надписи Четкая гравировка Вставки или фотокерамика Сохранность изображения.

Гравировка и художественное оформление: Контраст против Пластики

Выбор технологии нанесения изображения напрямую зависит от структуры камня. Художественное оформление памятника имеет свой "эстетический язык" для каждого материала.


Гранит: Идеал для портретной точности

Памятник из гранита, особенно из черных сортов, является лидером для классической гравировки.

 

Gemini_Generated_Image_wq8xxiwq8xxiwq8x

Gemini_Generated_Image_xc93jzxc93jzxc93

Gemini_Generated_Image_yjpg6uyjpg6uyjpg


Высокий контраст: Гравировка фото на памятник на черном граните позволяет передавать полутона с фотографической точностью. Чтобы результат был идеальным, обязательна качественная ретушь фотографий на памятник.

 

Gemini_Generated_Image_wq8xxiwq8xxiwq8x (1)


Детализация: Твердость камня позволяет художнику воплощать сложные образы, а гравировка на памятник: полное руководство поможет вам выбрать подходящий стиль.


Мрамор: Особенности передачи образа

 

Gemini_Generated_Image_rbl9q1rbl9q1rbl9

Gemini_Generated_Image_277y6h277y6h277y

Gemini_Generated_Image_udke94udke94udke

 


На мраморе гравированный портрет практически не виден из-за отсутствия контраста.
Альтернативные решения: Для мраморных стел часто используется вставка из черного гранита с портретом, а также современные методы: фото на памятник на стекле или фото на керамике.

 

Gemini_Generated_Image_rbl9q1rbl9q1rbl9 (1)


Скульптурные возможности: Мрамор позволяет создавать тончайшие детали. В ритуальной сфере также популярны скульптуры из литьевого мрамора на могилу, которые подчеркивают пластику материала.


Геологический генезис: ДНК памятника


Гранит: Рожденный в магматическом горниле
Кварц обеспечивает исключительную прочность гранита. В ритуальной сфере часто обсуждаются отличия габбро-диабаза и гранита: габбро плотнее и лучше подходит для глубокой гравировки портретов.

 

Gemini_Generated_Image_z8iieez8iieez8ii


Мрамор: Метаморфоза морского дна
Мрамор имеет более "живую" природу. Его светопроницаемость создает уникальный оптический эффект, но пористость делает его уязвимым.

 

Gemini_Generated_Image_pvww0hpvww0hpvww (1)


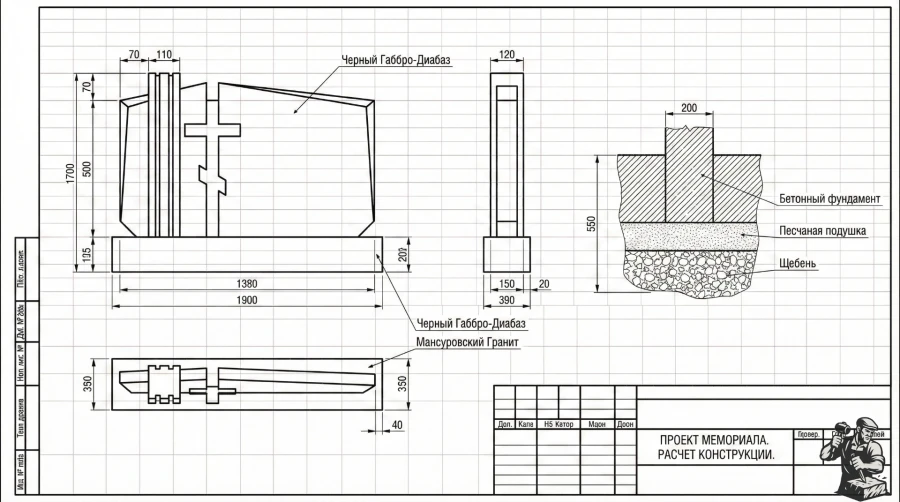
Инженерный анализ: Физико-механические свойства

 

Gemini_Generated_Image_6qpyd36qpyd36qpy


Инженерный анализ при создании мемориала - это гарантия того, что памятник не покосится и не разрушится под воздействием внешней среды в течение десятилетий. Учитывая средний вес стелы в 120-130 кг (а вместе с тумбой и цветником - до 250-300 кг), критическое значение имеет расчет нагрузки на грунт.

page4_img1


Выбор фундамента для максимальной надежности
Выбор типа основания зависит не только от веса конструкции, но и от типа почвы и времени, прошедшего с момента захоронения (рекомендуется установка не ранее чем через 12 месяцев).

 

page6_img1

Тип фундамента Когда выбирать Особенности конструкции
Балки (перемычки) Песчаные, стабильные почвы. Железобетонные балки укладываются поперек могилы с опорой на "материковый" (некопаный) грунт.
Монолитная плита Пучинистые, глинистые, мягкие почвы. Армированный бетонный слой по всей площади участка. Исключает перекос отдельных элементов.
Свайно-ленточный Участки с уклоном или высоким уровнем вод. Бурятся сваи ниже уровня промерзания почвы, сверху связываются бетонной лентой.
Бессер-блоки Для создания высокого цоколя.

Вибропрессованные блоки, обладающие высокой прочностью и эстетичным видом без доп. отделки.

page7_img1

Сравнение физико-механических свойств
Для долговечности мемориала важны показатели плотности и коэффициента водопоглощения.

Характеристика Гранит (Габбро-диабаз) Мрамор (Коелга и др.)
Плотность 2800–3000\, кг/м^3

2600–2800\, кг/м^3

Водопоглощение < 0.1\% (экстремально низкое) 0.15–0.50\% (среднее)
Морозостойкость 100–300 циклов 50–100 циклов
Твердость (Моос) 6–7 (высокая) 3–4 (средняя)


Особенность: имеет пористую структуру, из-за чего впитывает влагу и микрочастицы пыли.
Уход: требует обязательной гидрофобизации (покрытие "Антидождь").


Защитное покрытие "Антидождь"

Gemini_Generated_Image_78h2z478h2z478h2 (1)


Это специальный гидрофобный состав на основе акрила и воска. Он создает на поверхности камня (особенно в местах гравировки) невидимую пленку, которая:
Предотвращает потемнение портрета и надписей во время дождя.

 

  • Защищает от микротрещин: вода не попадает в поры, а значит, не расширяет их при замерзании.
  • Облегчает уход: грязь и пыль не въедаются в структуру камня и легко смываются водой.
  • Важно: Согласно ГОСТ Р 59404-2021, установка должна производиться строго по уровню с использованием цементных растворов или специальных клеев, устойчивых к перепадам температур от -50°C до +50°C.



Эстетика и Дизайн: Художественные возможности

 

unnamed


Профессиональный дизайн памятников - это не просто выбор формы, а создание визуального образа памяти. Использование современных инструментов на этапе проектирования позволяет избежать ошибок и увидеть результат еще до начала работ по камню.

Эстетика и дизайн: Инструменты проектирования

 

Blueprint & Beyond


Для создания уникального мемориального комплекса используются следующие этапы визуализации:
Эскиз памятника (2D-графика): Используется для первичного согласования концепции. На этом этапе определяется общая стилистика, пропорции и взаимное расположение элементов (стелы, тумбы, цветника). Эскиз помогает быстро "примерить" разные варианты художественной резки и выбрать направление дизайна.

 

page5_img1


3D-визуализация и моделирование: Создание цифровой копии будущего мемориала в высоком разрешении.

 

Gemini_Generated_Image_n3lu4vn3lu4vn3lu (1)

Это позволяет:

  • Осмотреть комплекс со всех сторон: Увидеть толщину плит, фаски и декоративные элементы в объеме.
  • Оценить текстуру камня: Программа имитирует реальный блеск полированного гранита или матовость мрамора, позволяя увидеть, как будут сочетаться разные сорта камня.
  • Работа со светом и тенями: Вы увидите, как памятник будет выглядеть при разном освещении.
  • Интеграция в ландшафт: Визуализация позволяет "вписать" памятник в конкретный размер участка, учитывая ограду, мощение плиткой или установку скамьи.
  • Фотореалистичный монтаж (Коллаж): Наложение макета памятника на реальную фотографию места захоронения. Это помогает понять, как мемориал будет гармонировать с соседними участками и общим окружением кладбища.
  • Типографика и гравировка: Подбор шрифтов (от строгой классики до старославянской вязи) и предварительное размещение портрета и эпитафии. Это гарантирует, что надписи будут читаемыми, а композиция - уравновешенной.

Почему это важно?

 

page11_img1


Проектирование позволяет не только увидеть эстетическую сторону, но и произвести точный технический расчет. Это исключает риск того, что готовое изделие будет выглядеть иначе, чем вы себе представляли, и дает уверенность в долговечности конструкции.

 

Gemini_Generated_Image_a6li4ma6li4ma6li (1)


Совет эксперта: При работе с 3D-моделью обратите внимание на сочетание контрастных материалов (например, черного габбро-диабаза и светлого мансуровского гранита) - это один из самых актуальных трендов в современном мемориальном дизайне.


Эксплуатация и Уход: Реальная цена владения

Gemini_Generated_Image_xhkau4xhkau4xhka


При выборе материала важно смотреть не только на дату установки, но и на десятилетия вперед. Гранит - это стратегия "поставил и забыл", которая избавляет от лишних тревог. Этот камень обладает высокой плотностью и химической инертностью. Он не впитывает жир, кислоты или органические красители. Если со временем зеркальный блеск немного потускнеет из-за пыли, можно узнать, как отполировать гранитный памятник своими руками, используя простую технологию и мягкие абразивы.

unnamed (2)


Мрамор же требует гораздо больше внимания и дисциплины. Из-за своей пористой структуры он моментально впитывает влагу и грязь. Для сохранения эстетики крайне важно знать, чем отмыть мраморный памятник, чтобы избежать глубоких пятен и постепенного разрушения камня. В целом, глубокое понимание того, как ухаживать за могилой на кладбище, поможет сохранить мемориал в первозданном виде на долгие годы.

 

page8_img1


Мнение эксперта: Марк Каменев

"Многие мои клиенты совершают распространенную ошибку, которую легко избежать: они выбирают белый мрамор для установки под густыми кронами деревьев. Органические пятна от почек, листвы и птиц проникают в поры камня настолько глубоко, что обычная мойка уже не помогает. В таких случаях эксплуатация превращается в бесконечную борьбу за чистоту. Если вы цените свое время и спокойствие, выбирайте гранит. Он прощает отсутствие ухода, тогда как мрамор требует регулярной заботы и защиты".


Пошаговая инструкция по очистке мрамора

 

  • Удалите сухой щеткой или ветошью песок и пыль с поверхности мемориала.
  • Обильно промойте камень чистой водой без использования бытовой химии.
  • Используйте специальные PH-нейтральные составы для удаления жирных или органических следов.



Экономический анализ: Что реально дороже и лучше?


Мрамор часто привлекает низкой ценой на простые стелы. Это объясняется мягкостью породы и легкостью ее добычи. Однако первоначальная экономия может быть обманчивой. Если рассматривать гранит в долгосрочной перспективе, оказывается выгоднее, за счет отсутствия затрат на реставрацию.


Гранитный материал дороже из-за своей твердости, так как требует мощного оборудования и алмазного инструмента для обработки. Но этот камень обладает стратегией "поставил и забыл". Он не требует частого обслуживания, не впитывает жир и кислоты, сохраняя зеркальный блеск десятилетиями.
Владение мраморным памятником - это ответственность. Без регулярного покрытия защитными составами через 20 лет камень становится серым и шершавым. Также стоит учитывать скрытые расходы: для качественного портрета на мраморе обязательны вставки из черного гранита или фотокерамика, что выравнивает итоговую цену со стоимостью цельной гранитной стелы.


Мнение эксперта: Марк Каменев


"Распространенная ошибка - смотреть только на ценник в момент покупки. Мрамор - живой материал, он требует ежегодной заботы. Если сложить стоимость защитных средств и услуг по очистке за 50 лет, гранитный памятник из габбро-диабаза обойдется в два-три раза дешевле. Гранит неизменен и хранит память веками, что делает его лучшим выбором для тех, кто ищет надежность.

 

Gemini_Generated_Image_gvil8lgvil8lgvil

Для тех, кто ограничен в средствах сегодня, консультация по подбору материалов и дизайна памятника поможет найти компромиссное решение без потери долговечности мемориала



Итоговые рекомендации и Профили выбора

 

unnamed (1)

 

 

  • Профиль "Прагматик": Рекомендуется черный гранит. Поможет определиться наше полное пошаговое руководство: как выбрать памятник.
  • Профиль "Эстет": Создание светлого образа из мрамора.
  • Профиль "Компромисс": Комбинированные мемориалы из разных видов камня.


Часто задаваемые вопросы


Вопрос: Правда ли, что мрамор со временем "рассыпается"?

Ответ: Мрамор не рассыпается мгновенно, но из-за высокой пористости он подвержен эффекту "сахарности". Вода проникает в поры, замерзает и постепенно разрушает связи между кристаллами кальцита ($CaCO_3$). Без регулярной гидрофобизации (используя покрытие антидождь для памятников) срок его декоративной службы составляет 50-100 лет, в то время как гранит стоит более 150 лет.


Вопрос: Можно ли сделать качественный портрет на мраморе?

Ответ: Прямая гравировка на светлом мраморе будет практически невидимой, так как скол камня совпадает по цвету с его поверхностью. Для решения этой проблемы мы рекомендуем использовать вставку из черного гранита с портретом или фото на керамике на памятник, которые обеспечат необходимый контраст и долговечность изображения.


Вопрос: Какой камень меньше нагревается на солнце?

Ответ: Светлый мрамор нагревается значительно меньше, чем темный гранит. Это свойство, наряду с его "теплым" визуальным восприятием, часто делает его предпочтительным для мемориалов в южных регионах, хотя плотность гранита все равно делает его более устойчивым к термическим деформациям.


Вопрос: Что делать, если на мраморе появились темные пятна или мох?

Ответ: Мрамор - метаморфическая порода, его поры являются идеальной средой для биокоррозии. Если это произошло, важно знать, чем отмыть мраморный памятник, не повредив его структуру кислотами. В отличие от него, гранит (особенно габбро-диабаз) практически не требует биоцидной очистки.


Вопрос: Можно ли комбинировать эти материалы в одном проекте?

Ответ: Да, это отличное решение. Профессиональный дизайн памятников и надгробий часто предполагает сочетание гранитной стелы (для долговечного портрета) и мраморных скульптурных элементов. Такой эскиз памятника на могилу позволяет объединить вечность гранита и пластику мрамора.


Заключение

Gemini_Generated_Image_mncjsmmncjsmmncj


Выбор между гранитом и мрамором - это выбор между вечностью и утонченностью. Гранит хранит память веками без лишних хлопот, тогда как мрамор требует заботы. Для создания гармоничного места захоронения также стоит продумать ландшафтный дизайн могилы и общее благоустройство могилы на кладбище.


Приложение: Не забудьте уточнить название месторождения. Для долговечности надписей может успешно применяться пескоструйный метод обработки текста. Также стоит заранее изучить правила и традиции посещения кладбища на Радоницу для правильного ухода за местом памяти.
 
 

Вверх

Отсканируйте QR-код
и напишите нам с телефона

Написать в WhatsApp

Или нажмите на кнопку, чтобы написать с компьютера:

×

Удобнее с телефона?
Сканируй QR код.

Перейти в Telegram Перейти в Telegram
×

Удобнее с телефона?
Сканируй QR код.

Перейти в Telegram Перейти в Telegram
×

Напишите в MAX.
Сканируйте QR код.

Написать в MAX Написать в MAX
Свяжитесь с нами прямо сейчас